
Zwei Jahre bevor Giovanni Michelucci mit dem Sieg im Wettbewerb für den neuen Bahnhof von Florenz italienische Architekturgeschichte schreibt, realisiert er für die Familie Valiani in Rom ein bemerkenswertes Einfamilienhaus, das heute kaum noch bekannt ist. Die Casa Valiani (1929-31) entsteht in der Via Romanello da Forlì 25 im Quartier Pigneto nahe der Ausfallstraße Prenestina. Heute ist das herrschaftliche Haus kaum noch wiederzuerkennen; zahlreiche bauliche Veränderungen und kontinuierlicher Verfall haben dazu geführt, dass es nahezu untergetaucht, ja unkenntlich ist.

Zunächst beauftragt die Familie Valiani den toskanischen Architekten Michelucci damit, ein bestehendes Haus umzubauen. Nachdem sich die Konstruktion jedoch als unzuverlässig erweist, wird der Auftrag auf einen den Bestand überformenden Neubau ausgedehnt. Allerdings soll dieser den strukturellen Grundzügen des bereits umgebauten Hauses folgen, indem diese erweitert werden. Während des Baus wird das Raumprogramm um zwei weitere Wohnungen zu einem großen Mehrparteienhaus erweitert, so dass das Gebäude bis zu seiner Fertigstellung weitere wesentliche Veränderungen erfährt. Schließlich soll das Haus den fünf Brüdern der Familie Valiani separate Wohnungen und gemeinschaftliche Räume wie Gesellschaftszimmer, Salon, Billardzimmer bieten. Somit ist das wechselvolle Schicksal des Hauses schon im Entstehungsprozess vorgezeichnet. Dennoch gelingt Michelucci ein harmonisches, sowohl in der Erschließung als auch in der formalen Artikulation schlüssiges Haus, das zu einem der ersten Bauwerke gehört, die in Rom dem Geist der Moderne Einzug gewähren.


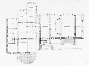
Im Erdgeschoss legt Michelucci einen großzügig verglasten Eingang an, von dem aus die erste Wohnung (Erdgeschoss) sowie die oberen Etagen mit je zwei Wohneinheiten erschlossen werden. Mit ihrer Leichtigkeit suggerierenden Verglasung scheint sie eines der zentralen Themen des Florentiner Bahnhofes zu antizipieren. Die Betonung der Baukörper, der Verzicht auf redundantes Formevokabular, präsentieren eine seinerzeit frische Interpretation des römischen Stadthauses. Die Modernität des Hauses kulminiert buchstäblich in der sich an der Fassade abzeichnenden Eingangstreppe, findet aber auch im raffinierten System vor- und zurückspringender Baukörper, Terrassen und Loggien Ausdruck. Die planimetrische Bewältigung des schwierigen Raumprogramms mit den separaten und doch miteinander agierenden Wohnungen ist gelungen.
